Residents in St Athan are opposing a massive housing estate right on their doorstep which could “permanently alter the character” of the area.
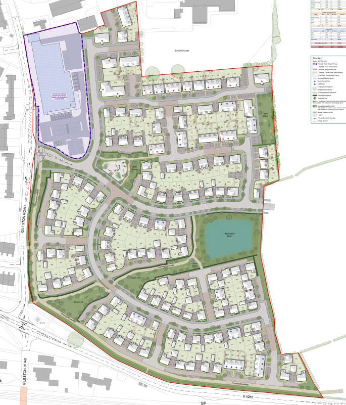
BDW Trading Ltd, a subsidiary of Barratt Redrow, has filed plans with Vale of Glamorgan Council to build a 232-home development at Church Farm in St Athan.
The proposal also includes a foodstore that could be as large as 20,000 sq ft.
However the plans have been controversial to some in the community.
Local resident Claire Loxton, speaking on behalf of members of a Facebook group opposing the development, said: “Residents in St Athan have raised serious concerns over a proposed hybrid development on Gileston Road, St Athan, warning that the plans could put children’s lives at risk, destroy vital wildlife habitat, and permanently alter the character of the village.”
She continued: “Existing homeowners, many of whom currently look out over open fields, say they will instead face the looming presence of a supermarket building, lighting, delivery bays, and constant vehicle movement.
“The lack of a meaningful buffer between current homes and the proposed development has been described as a serious failure to protect residential amenity.”
Her and her group are particularly concerned about the impact of traffic in Gileston Road, which serves as the primary entrance and exit for the village, as well as a crossing for school children.
She claimed “the crossing is not even safe under current traffic levels” and said she feared the new houses and supermarket would “dramatically” increase traffic in the area.
The environment is also a point of concern for residents.

Ms Loxton said: “The plans would require the removal of an ancient hedgerow that serves as a natural boundary between existing homes and open land.
“The hedgerow is known locally as a wildlife corridor and is believed to support redlisted bird species at risk of decline.”
The group also believed their objections “have not been taken seriously”.
A spokesman for Barratt Redow said: “Our goal is to deliver a high-quality sustainable development that addresses the urgent need for local housing in the area as set out in the Regional Local Development Plan for Wales.”
They continued: “In addition to much-needed homes we will also be providing amenities for the village such as a new food store and providing significant contributions towards local infrastructure and services to the community.
“The proposed access via Gileston Road has been designed following a rigorous assessment by independent highways consultants. The assessment confirms that the junctions operate within capacity and that no traffic mitigation measures are required.
“From an environmental perspective our end goal is always to deliver a substantial biodiversity net gain.
“In this instance we will replant existing hedgerows together with new native hedges and trees exceeding what is currently on site.
“This will be supported by wildflower meadows and public open spaces.
“There are also substantial green corridors, pedestrian/cycle ways, and open spaces which will act as natural buffers between existing homes and the new neighbourhood.
“Feedback from the pre-application consultation (PAC) has been really important in refining our plans so far and our team have regularly met with residents and the county councillor in recent weeks. This engagement will continue as the planning process moves forward.”

2026 sees biggest ever Barry Island 10K and new women’s course record
Daring to Dream releases powerful charity single to spark conversation on emotional health
RNLI Visitor Experience Secures Its Future with 10-Year Promenade Lease
Senedd committees: What are they and why are they so important?
Meet the new Welsh Government cabinet: Who’s in, and what are their roles?
Barry Island Protest to Highlight Sewage Crisis in Welsh Waters
Barry and Billericay find a new voice through song to unite Dementia Communities across the UK.
Barry Town Council welcomes new Mayor for 2026/27
First Minister appoints his Ministerial team
Bride Travels to Wedding by Train on the South Wales Metro
Officers continue to investigate Park Road incident
Sell-out Barry Island 10k returns this Sunday
Six Vale beaches receive yellow and blue seaside Award flags
Conservative MS thanks voters for their support as he returns to the Senedd
Cardiff Airport backs aviation degree with on-site student training
National award for local PR consultant
A surfboard shop in Penarth could be a new bar with "potential" for future restaurant use